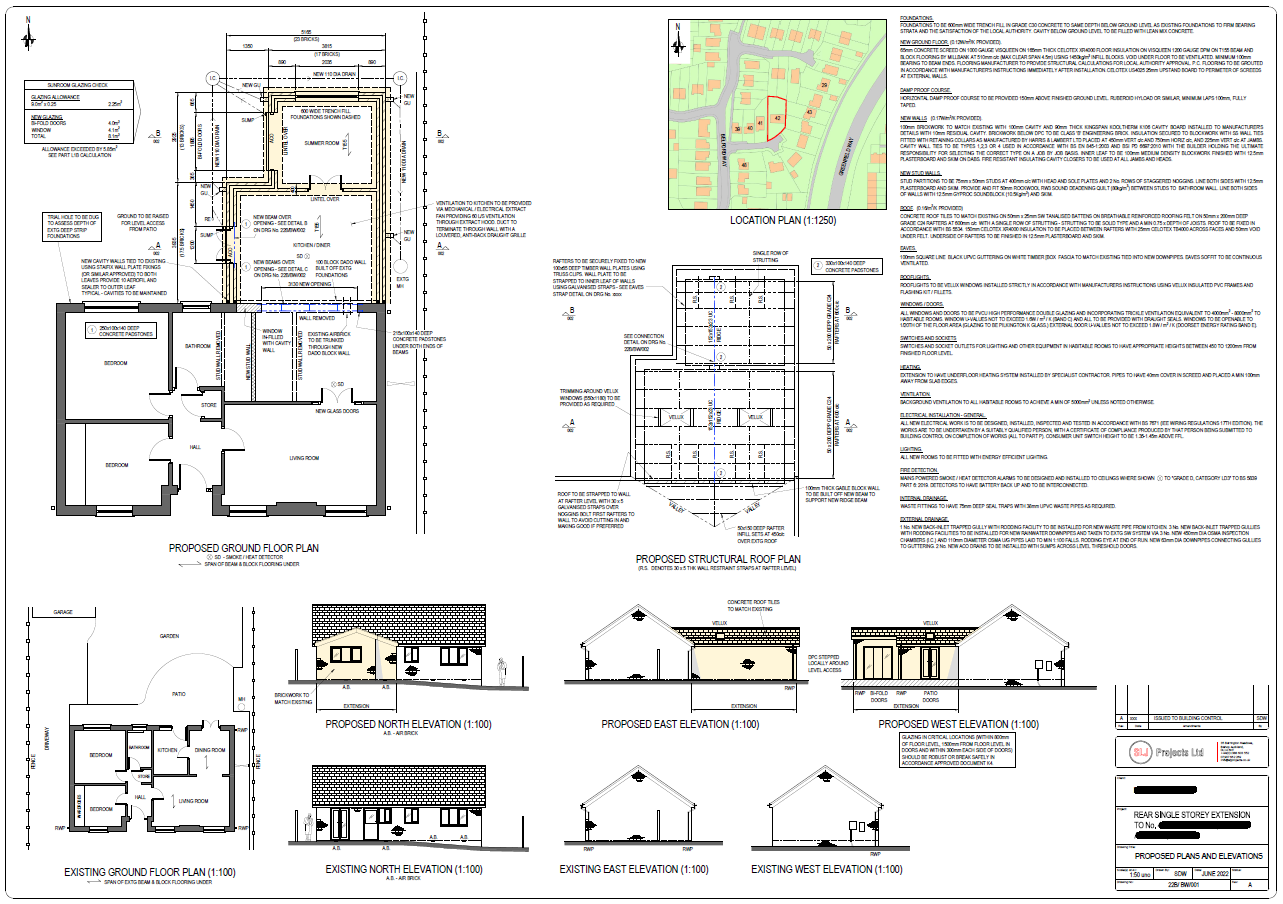
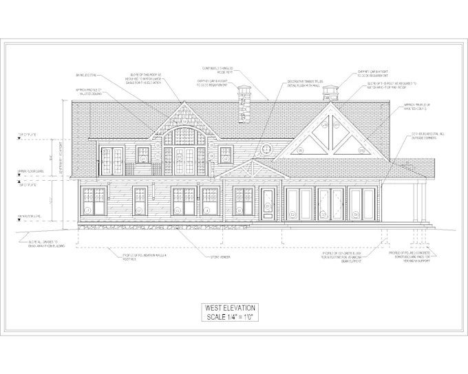
At Q & Q Construction, we provide professional Building Permits Drawings that meet all local code and regulatory requirements, ensuring that your construction or renovation project can proceed without delays. Our team of experienced professionals creates detailed and accurate permit drawings that align with building standards, helping you navigate the approval process with ease.
Whether you’re constructing a new building or making modifications to an existing one, our permit drawings are designed to provide a comprehensive overview of the project. From site plans to structural layouts and MEP systems, we ensure every aspect of your project is fully documented for city and county approval.
Get Started
Ready to bring your project to life? Whether you’re planning a residential, commercial, or industrial project, we’re here to help every step of the way.
At QNQ Construction, we specialize in delivering exceptional building design, drafting, and Tenant Improvments. From residential to commercial projects,
Copyright © 2026 QNQ Construction WEBSITE RANKED & POWERED BY THE MARKETING WIZARDZ